Ons gebouw
Ons clubgebouw (met een eigen parkeerterrein, speelplein, 2 speel/kampeervelden en natuurlijk de voor iedere scoutinggroep onmisbare kampvuurkuil) staat sinds 2000 aan de Sliet in Hardinxveld-Giessendam.
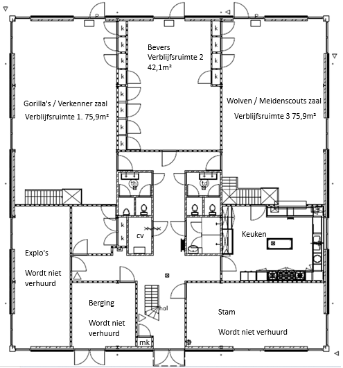
Binnen het gebouw zijn er 3 zalen, 2 kleinere lokalen en 3 zolders. Ook zijn er natuurlijk heren- en damestoiletten, een keuken en 2 douches.
Verhuur
Ons ruime clubgebouw is (deels) te huur voor scoutinggroepen of andere verenigingen. Het is een ideaal kampgebouw op een rustige plaats, voor wie wel eens een andere omgeving wil dan bos, met toch genoeg mooie natuur in de nabije omgeving (Hollandse Biesbosh en de polders van de Alblasserwaard).
Let op:
– Verhuur voor feesten en partijen is niet mogelijk/toegestaan in ons gebouw.
Neem vrijblijvend contact met ons op voor de mogelijkheden: verhuur@scoutinga15.nl
Verhuurprijzen en beschikbaarheid
Neem contact met ons op over de mogelijkheden. Zie uitzondingen hieronder
Huurprijzen 2025
€8,95,- p.p.p.n. Met een minimale huurprijs van €225,-
Huurprijzen 2026
€9,25,- p.p.p.n. Met een minimale huurprijs van €235,-
We verhuren bij voorkeur alleen met Pasen, Pinksteren, Hemelvaart en in de zomervakantie.
Voor alle aanvragen in periodes die niet in bovenstaande periode vallen kunnen in overleg kijken wat er mogelijk is.
Mits dit 3 maanden voor de datum aangevraagd wordt, en de groep uit minimaal 50 personen bestaat kunnen onze vaste huurders uitwijken.
Gebouw indeling

